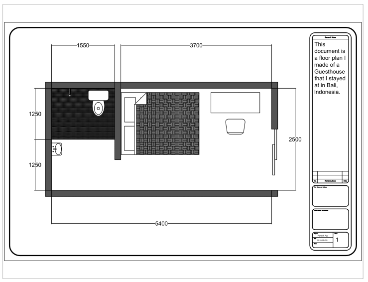
I recently completed an online course for AutoCAD and I’ve learned its fundamentals. I hope to use these skills for any transport planning or urban design projects. Here’s a floor plan that I drew up of a guesthouse that I stayed at:

An overview of my experience and background
I recently completed an online course for AutoCAD and I’ve learned its fundamentals. I hope to use these skills for any transport planning or urban design projects. Here’s a floor plan that I drew up of a guesthouse that I stayed at:
